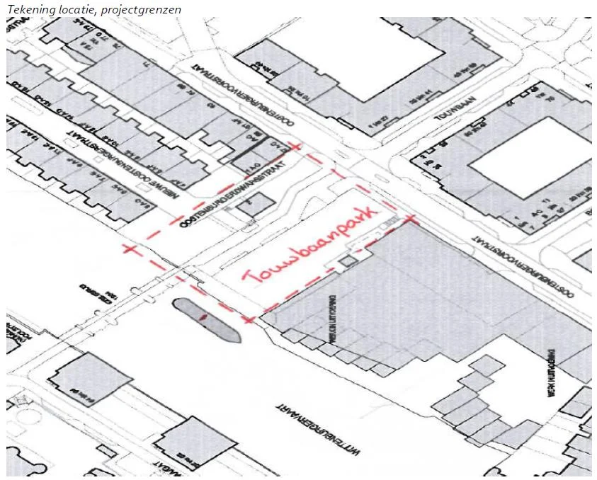
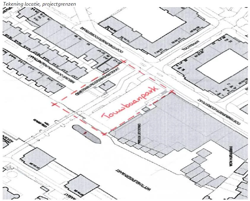
Stadsdeel Centrum organiseert op donderdag 11 juni 19:00 - 21:00 uur in de Oosterkerk een informatieavond/workshop over de herinrichting van het parkeerterrein naast het Wienerterrein, inclusief de strook waarin het fietspad naar de Ezelsbrug. In het bestemmingsplan heeft het de bestemming park gekregen. Het stadsdeel wil het inrichtingsplan maken in overleg met omwonenden en ontwikkelaar Heijmans. Lees hier de aankondiging van het stadsdeel.
Op maandag 29 juni zal een tweede workshop georganiseerd worden

